KUCHEROV
STUDIO
Portfolio
About
Contacts
Portfolio
About
Contacts
en
uk
Get an Estimation
info@kucherovstudio.com
+38 067 459 6380
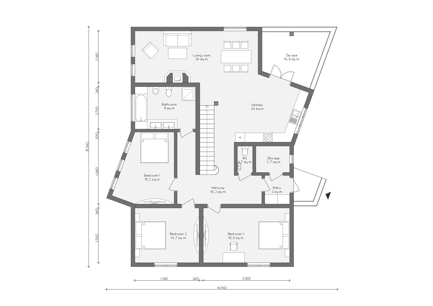
2D and 3D floor plans | Kucherov Studio
← Back to Projects
Like
Share
2D and 3D floor plans
Construction Drawings
Location N/A
202X
N/A
Project description coming soon.
Inquire This Project