KUCHEROV
STUDIO
Portfolio
About
Contacts
Portfolio
About
Contacts
en
uk
Get an Estimation
info@kucherovstudio.com
+38 067 459 6380
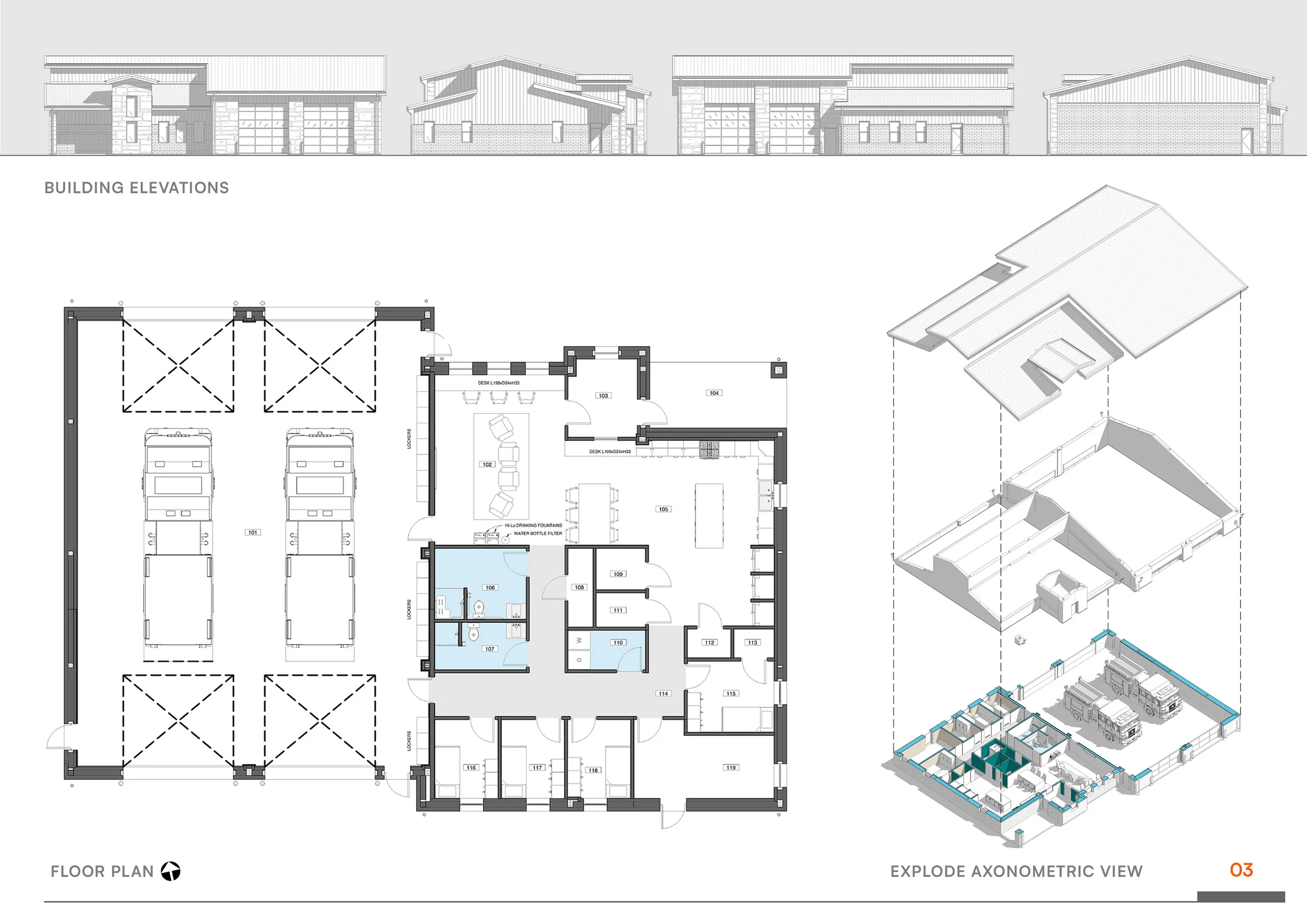
New caney fire station | Kucherov Studio
← Back to Projects
Like
Share
New caney fire station
Architectural Design
New caney TX, US
2020
Lot: 59.902sq.ft. (5.565sqm) | Building: 5.404sq.ft. (502sqm)
Project description coming soon.
Credits
Architect
Gary Grossman
Architect assistant
Aleksander Kucherov
Software
Render
Corona
3D modeling
3ds Max
BIM-modeling
Revit
Working drawings set
Revit
Inquire This Project