KUCHEROV
STUDIO
Portfolio
About
Contacts
Portfolio
About
Contacts
en
uk
Get an Estimation
info@kucherovstudio.com
+38 067 459 6380
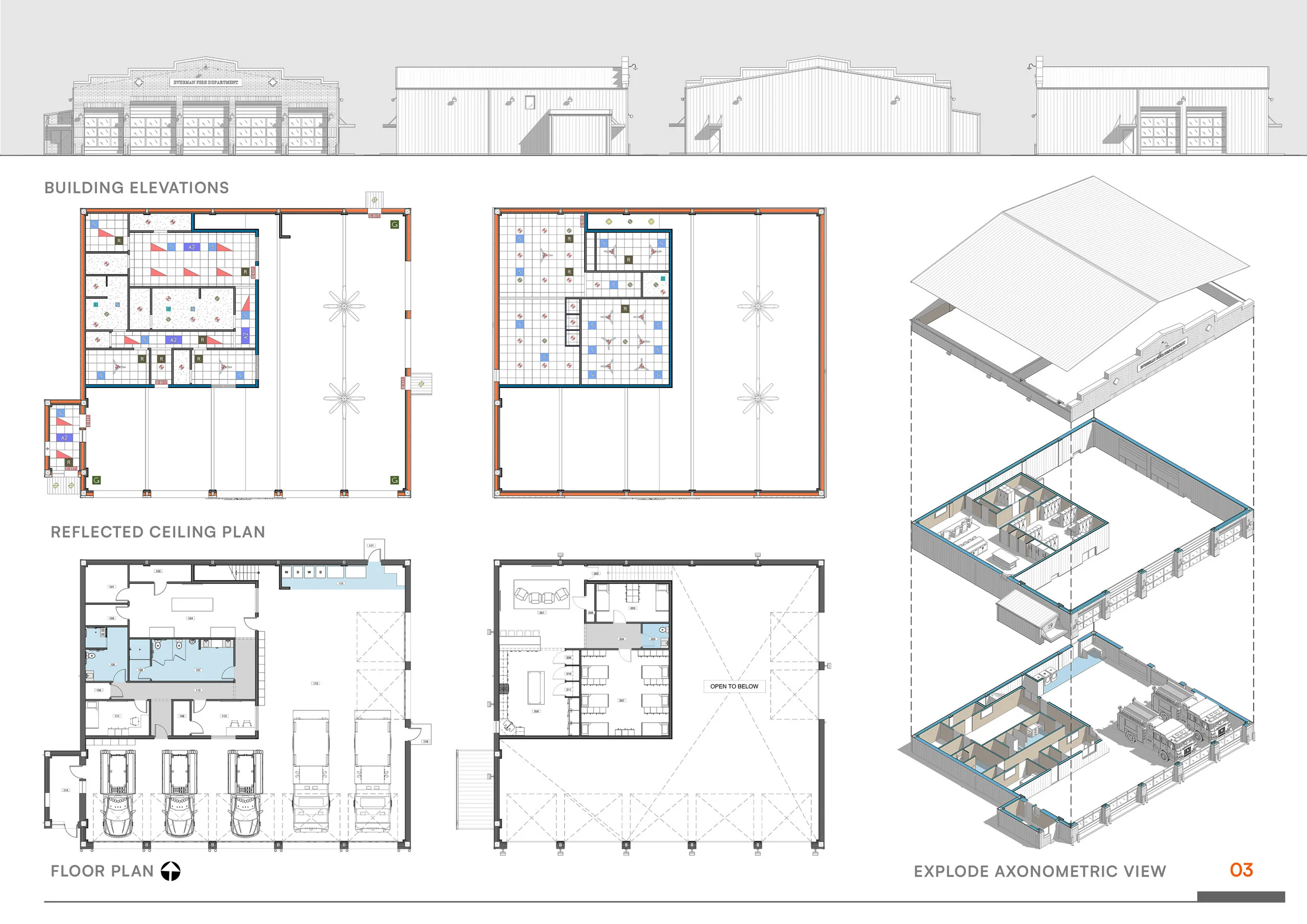
Everman fire station - renovation | Kucherov Studio
← Back to Projects
Like
Share
Everman fire station - renovation
Architectural Design
Everman TX, US
2020
Lot: 24.721sq.ft. (2.297sqm) | Building: 7.707sq.ft. (716sqm)
Project description coming soon.
Credits
Architect
Gary Grossman
Architect assistant
Aleksander Kucherov
Software
Render
Corona
3D modeling
3ds Max
BIM-modeling
Revit
Working drawings set
Revit
Inquire This Project