KUCHEROV
STUDIO
Portfolio
About
Contacts
Portfolio
About
Contacts
en
uk
Get an Estimation
info@kucherovstudio.com
+38 067 459 6380
Everman city annex - renovation | Kucherov Studio
← Back to Projects
Like
Share
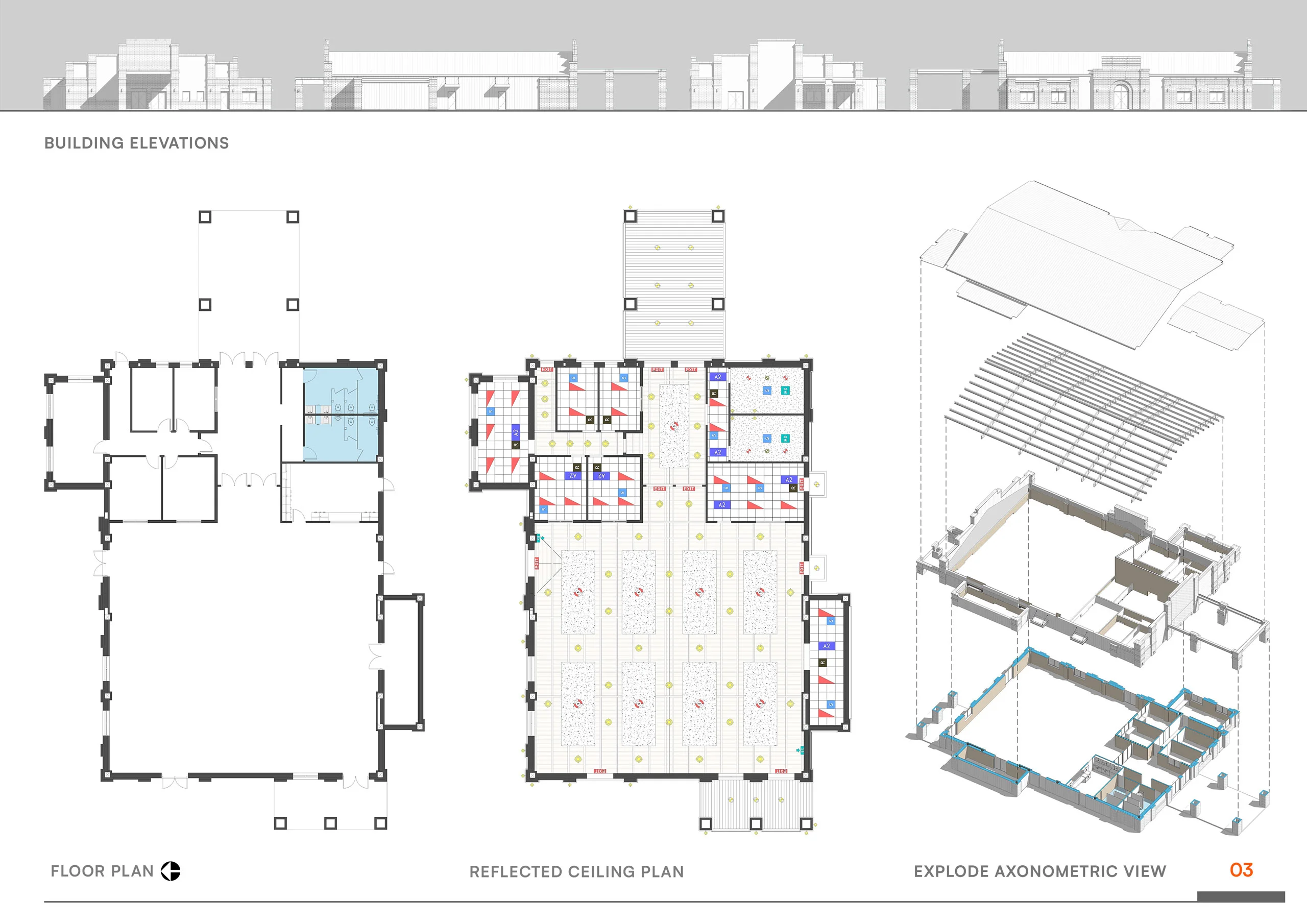
Everman city annex - renovation
Architectural Design
Everman TX, US
2020
Lot: 105.788sq.ft. (9.828sqm) | Building: 8.611sq.ft. (800sqm)
Project description coming soon.
Credits
Architect
Gary Grossman
Architect assistant
Aleksander Kucherov
Software
Render
Corona
3D modeling
3ds Max
BIM-modeling
Revit
Working drawings set
Revit
Inquire This Project